
Urban Link
Fall 2016
School of Planning and Architecture, New Delhi
Architecture Studio
Location
New Delhi
Neighbourhood Scale
Critics
BK Tanuja Kanvinde, Sonia Kapre
Team
Niharika Shekhawat, Ambika Malhotra, Meher N Bahl, Tanya Makker
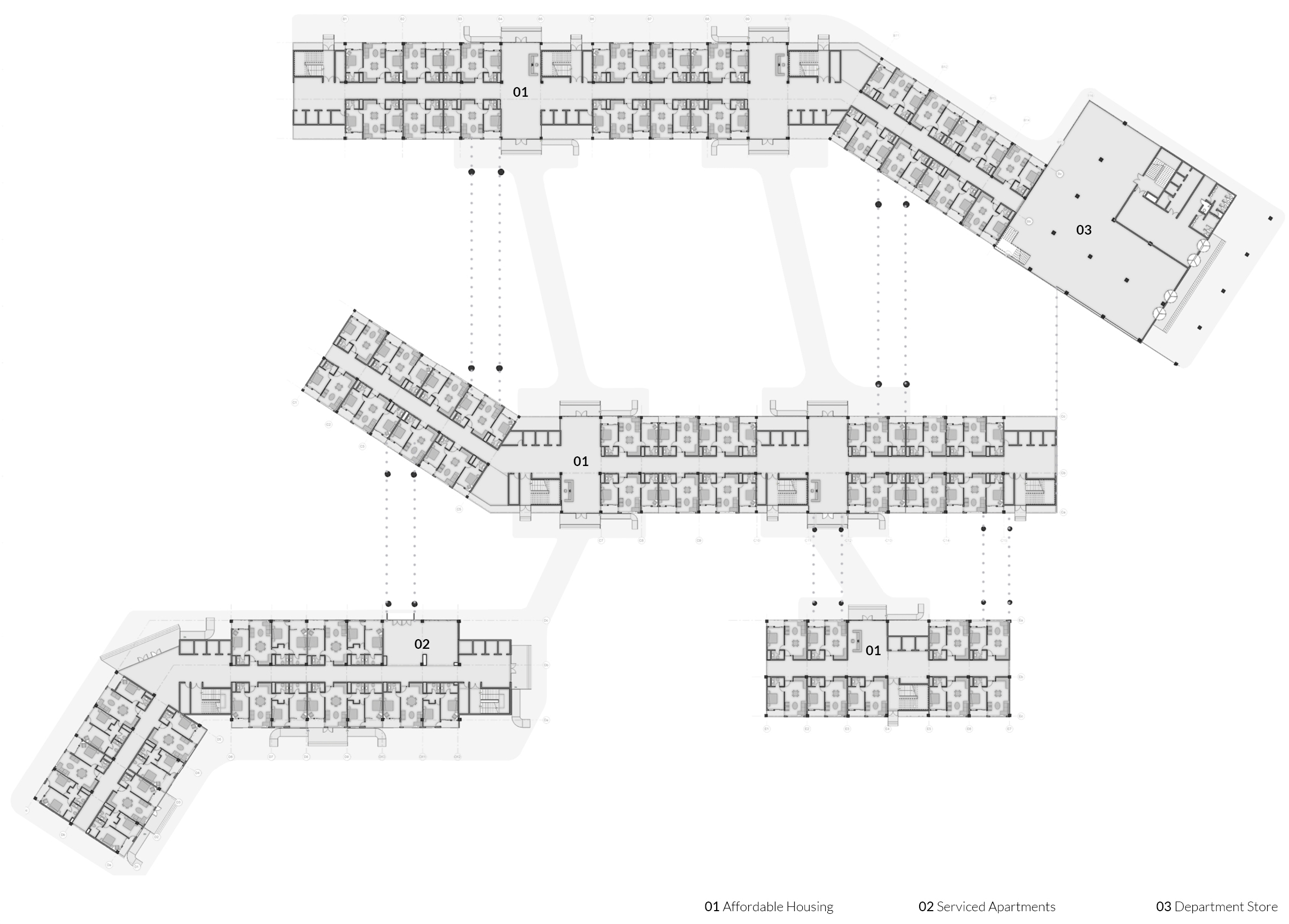
A transit Oriented mixed-use development built around Dwarka Sector 10 metro station, consisting of various functions such as office, residence, retail, convention center and hotel. Also consisting of public spaces interlinked via mandatory green, this urban design projects aims to create a viable addition to the urban fabric of the city. Public spaces form the focus of the complex around which the built is scattered. Programmatic disposition allows public movement at lower levels, bringing people into the complex. Lack of boundary leading to urban permeability.
Ground Coverage : 24,880 sqm
Total Area : 226,786 sqm
F.A.R : 3.8
Ground Coverage : 24,880 sqm
Total Area : 226,786 sqm
F.A.R : 3.8



Transit oriented development site integration








View of the Residential Block



Unit A: 40 sqm
Unit B: 60 sqm
Service Apartments: 120 sqm

View of the Retail block

